グループホーム太陽荘
施設概要
| 所在地 | 〒028-3614 岩手県紫波郡矢巾町又兵エ新田5-28-2 |
|---|---|
| TEL | 019-697-9400 |
| FAX | 019-697-9405 |
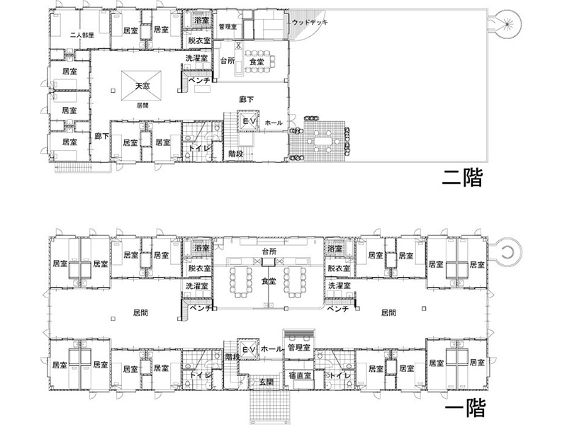
| 定員 | 3ユニット25人 |
| 部屋数 | 1階16部屋、2階8部屋(個室) ※2階の1室は2人部屋です |
| 利用時間 | 24時間対応 |
| 定休日 | なし |
| アクセス |
|
運営方針
県内唯一の3ユニットによる運営ですが各ユニット8~9名単位とし楽しい共同生活が送れます。トップライトが明るく開放的な広いリビング、個室、トイレ等は余裕を持たせた利用しやすいスペースを確保しており少人数の共同生活を通じ症状の緩和をうながし人としての尊厳を守りながら安全で安らぎに満ちた快適な生活を送ることが出来る施設となっています。
特徴
田園に囲まれるなど恵まれた自然環境のもと、地域とのつながりを大切にし、家庭的な環境の中で安全で安らぎに満ちた楽しい生活をしていただきながら日常生活を通して思いやりや感謝の気持ちがひとつの「和」になっていくことを目指しています。また、心身の機能訓練などを行うことにより、利用者の皆様がその有する能力に応じか可能な限り、自立して安心と尊厳のある生活を営むことができるように支援していくことです。
外観・内観イメージ
利用料
介護保険制度の見直しなどで、変更になることもございます。ご不明な点はお気軽にご相談くださいませ。
| 要介護度 | 要支援2 | 要介護1 | 要介護2 | 要介護3 | 要介護4 | 要介護5 | |
|---|---|---|---|---|---|---|---|
| 介護保険 一割負担額 |
基本報酬 | 749 | 753 | 788 | 812 | 828 | 845 |
| サービス提供体制強化加算(Ⅲ) | 6 | 6 | 6 | 6 | 6 | 6 | |
| 夜間支援体制加算(Ⅱ) | 25 | 25 | 25 | 25 | 25 | 25 | |
| 医療連携体制加算(Ⅰ)ロ | - | 47 | 47 | 47 | 47 | 47 | |
| 認知症専門ケア加算(Ⅰ)対象者のみ | 3 | 3 | 3 | 3 | 3 | 3 | |
| 介護職員処遇改善加算(Ⅱ) | 所定単位数(基本報酬+各種加算)×日数×17.8% | ||||||
| その他 利用料 |
部屋代 | 1,500 | 1,500 | 1,500 | 1,500 | 1,500 | 1,500 |
| 食材料費 | 1,200 | 1,200 | 1,200 | 1,200 | 1,200 | 1,200 | |
| おやつ代 | 150 | 150 | 150 | 150 | 150 | 150 | |
| 光熱費 | 1,000 | 1,000 | 1,000 | 1,000 | 1,000 | 1,000 | |
| 利用負担金合計(1日分) | 4,633 | 4,684 | 4,719 | 4,743 | 4,759 | 4,776 | |
| 利用負担金合計(30日分) | 138,990 | 140,520 | 141,570 | 142,290 | 142,770 | 143,280 | |
- 初期加算として、入居日より30日間に限り1日30円をご負担いただきます。
- 生産性向上推進体制加算(Ⅱ)月1回、10単位加算。
- 入居保証金(一人あたり10万円)を入居時にお預かりいたします。ただし退去時や必要に応じ、破損部修繕等を控除し、残金は返却いたします。
- 医療費、おむつ代、理容代、お小遣い等は自己負担となります。
アクセス
- JR東北本線「矢幅」駅より車で5分、徒歩10分
- 田園ホールより徒歩3分
グループホーム都南太陽荘
施設概要
| 所在地 | 〒020-0838 岩手県盛岡市津志田中央2-3-20 |
|---|---|
| TEL | 019-639-7140 |
| FAX | 019-639-7145 |
| 定員 | 2ユニット18人 |
| 部屋数 | 18部屋(個室) |
| 利用時間 | 24時間対応 |
| 定休日 | なし |
| アクセス |
|
運営方針
『人としての尊厳を守る』『共生・協働の精神』『自己実現の導き』を法人理念とし、利用者様、家族様、関係者様すべての出会いや地域とのつながりも大切にし、思いやりや感謝の気持ちを忘れず、共に生き、共に働き、共に喜びや悲しみを分かち合いながら、穏やかな家庭的雰囲気のもと、活力ある日常生活を目指しつつ、認知症の進行の軽減を図り、自立支援から自己実現へと導けるよう介護支援を日々行っていくこと。
特徴
2ユニットの運営で個室が18室ございます。利便性がよく自然豊かな恵まれた環境に加え、オレンジがさわやかな印象を与える外観で、駐車・通路スペースもしっかり確保しておりますし、また中庭の菜園では、入居者の皆様が野菜等を育てているなど、安らぎに満ちた快適な生活を送っております。
トップライトが生む明るく開放的なリビングでは、天窓からあふれんばかりの光のシャワーを浴びながら、にこやかなみんなの笑顔が集います。どうぞ気軽にご見学、ご相談くださいませ。
外観・内観イメージ
利用料
介護保険制度の見直しなどで、変更になることもございます。ご不明な点はお気軽にご相談くださいませ。
| 要介護度 | 要支援2 | 要介護1 | 要介護2 | 要介護3 | 要介護4 | 要介護5 | |
|---|---|---|---|---|---|---|---|
| 介護保険 一割負担額 |
基本報酬 | 749 | 753 | 788 | 812 | 828 | 845 |
| サービス提供体制強化加算(Ⅲ) | - | 6 | 6 | 6 | 6 | 6 | |
| 夜間支援体制加算(Ⅱ) | - | - | - | - | - | - | |
| 医療連携体制加算(Ⅰ)ロ | - | 47 | 47 | 47 | 47 | 47 | |
| 認知症専門ケア加算(Ⅰ)対象者のみ | - | - | - | - | - | - | |
| 介護職員処遇改善加算(Ⅱ) | 所定単位数(基本報酬+各種加算)×日数×17.8% | ||||||
| その他 利用料 |
部屋代 | 1,500 | 1,500 | 1,500 | 1,500 | 1,500 | 1,500 |
| 食材料費 | 1,200 | 1,200 | 1,200 | 1,200 | 1,200 | 1,200 | |
| おやつ代 | 150 | 150 | 150 | 150 | 150 | 150 | |
| 光熱費 | 1,000 | 1,000 | 1,000 | 1,000 | 1,000 | 1,000 | |
| 利用負担金合計(1日分) | 4,599 | 4,656 | 4,691 | 4,715 | 4,731 | 4,748 | |
| 利用負担金合計(30日分) | 137,970 | 139,680 | 140,730 | 141,450 | 141,930 | 142,440 | |
- 初期加算として、入居日より30日間に限り1日30円をご負担いただきます。
- 生産性向上推進体制加算(Ⅱ)月1回、10単位加算。
- 入居保証金(一人あたり10万円)を入居時にお預かりいたします。ただし退去時や必要に応じ、破損部修繕等を控除し、残金は返却いたします。
- 医療費、おむつ代、理容代、お小遣い等は自己負担となります。
アクセス
- 岩手県交通バス「津志田近隣公園前」停留所より徒歩5分
- JR東北本線「岩手飯岡」駅より徒歩30分


【館内配置図】
【館内配置図】